Ga naar inhoud

Brinkstraat - 6 appartementen

9411 KN Beilen

6 vrij van 6

€ 399.000,- t/m € 425.000,-

  1. Home>
  2. Nieuwbouw>
  3. Koop Beilen Brinkstraat – 6 appartementen

Wilt u meer weten over dit nieuwbouwproject? Kom gerust langs en stel uw vragen aan onze makelaars.
Datum: Donderdag 17 juli 2025;
Locatie: Restaurant ”De Cerck”
Tijd: 15:30 – 17:30
Voor meer informatie kunt u alvast contact met ons opnemen.

Wonen in comfort en stijl – in het hart van Beilen

In het centrum van Beilen wordt binnenkort een modern nieuwbouwproject ontwikkeld. Het betreft een kleinschalig project bestaande uit 6 duurzame appartementen. Hier woon je comfortabel, energiezuinig én op loopafstand van alle voorzieningen.

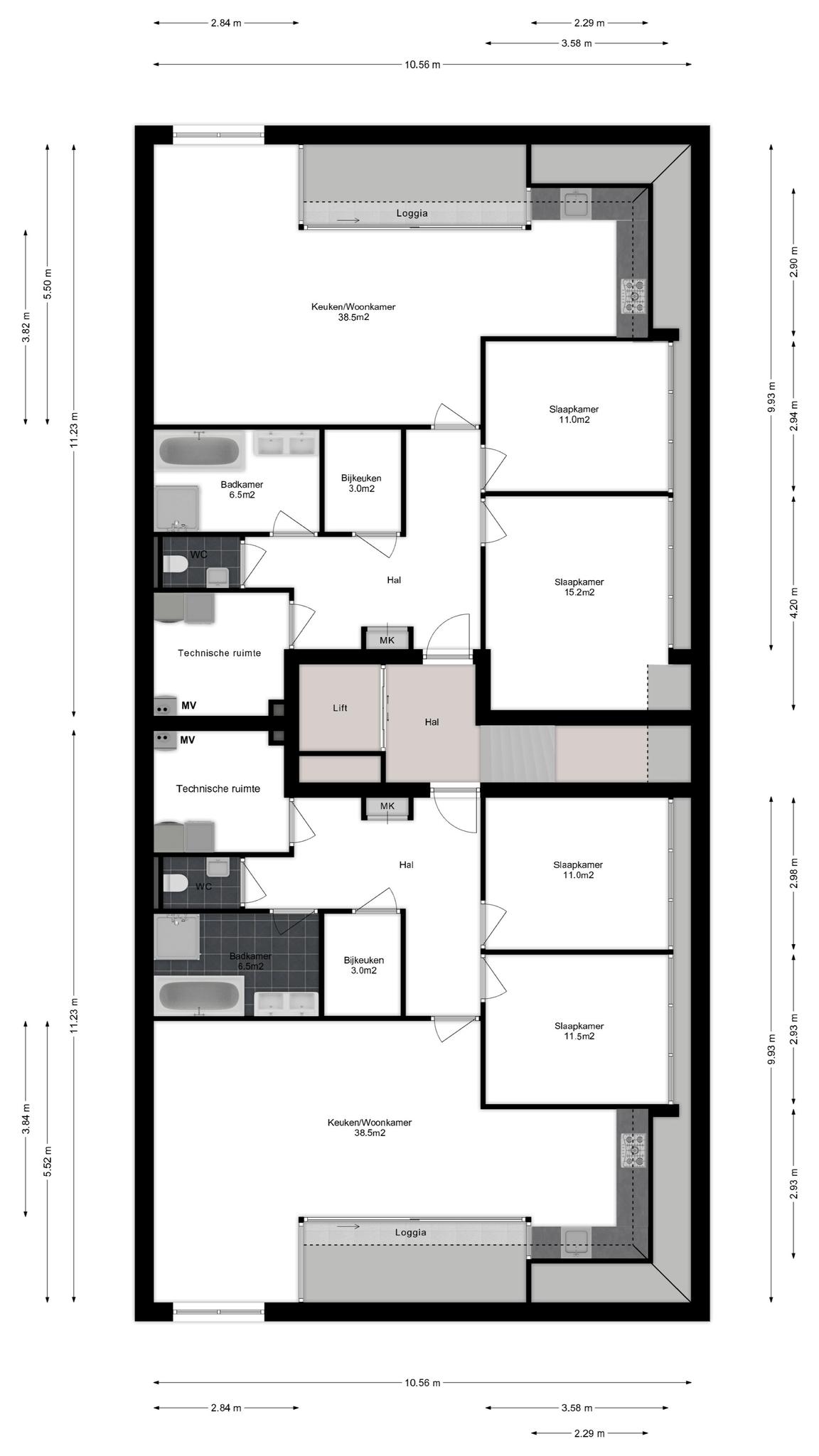
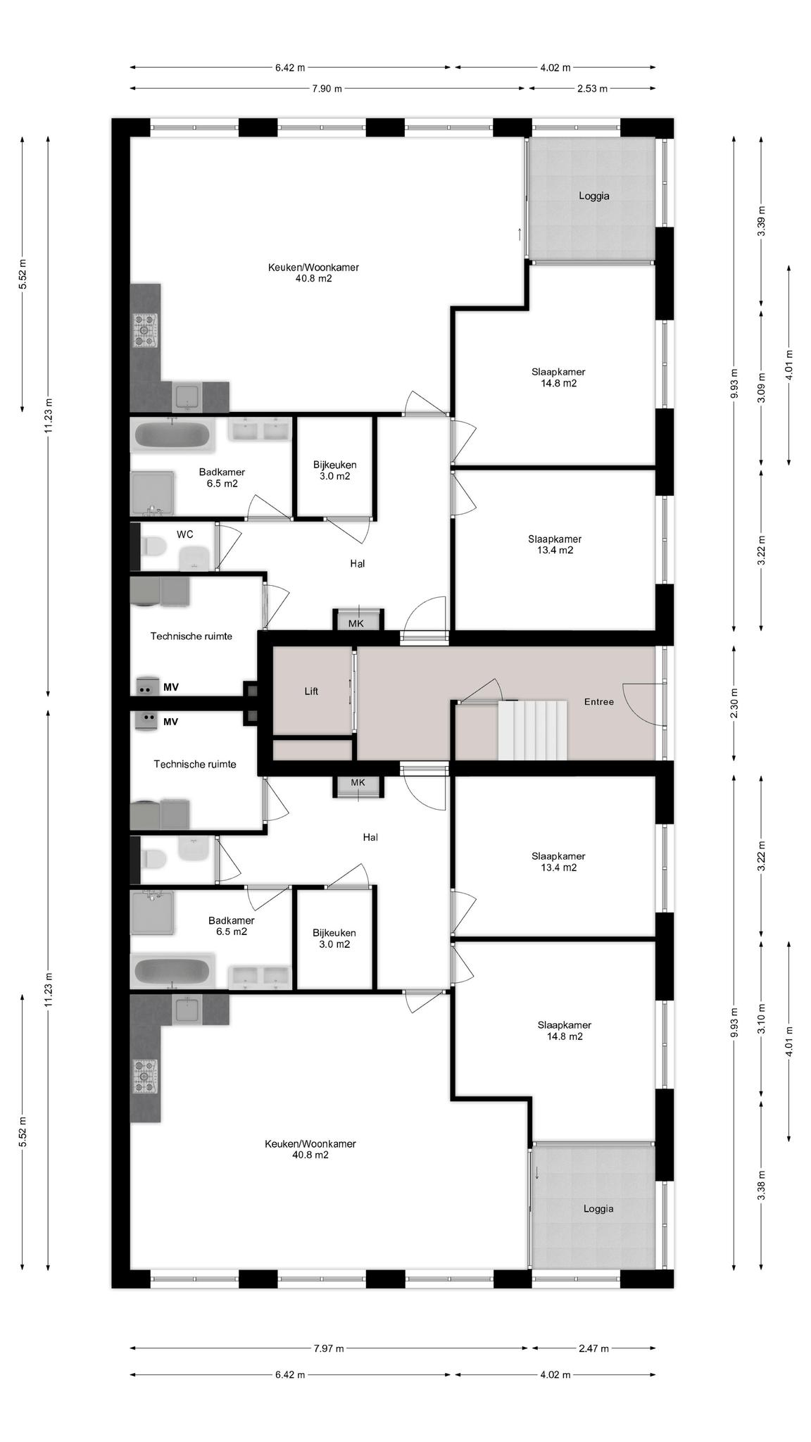
Het complex bestaat uit zes comfortabele appartementen, verdeeld over drie verdiepingen. Elke appartement biedt circa 100 m² woonoppervlakte, een ruime woonkamer met open keuken, twee volwaardige slaapkamers en een balkon/loggia om buiten te zitten. Dankzij de optimale indeling geniet je van licht, ruimte en privacy – of je nu op de begane grond, middenverdieping of bovenste etage woont.

Het gebouw is ontworpen in een moderne stijl en volledig gericht op duurzaam wonen. Zo zijn alle appartementen voorzien van vloerverwarming, uitstekende isolatie, zonnepanelen, warmtepomp (lucht/water) en een energielabel A (+++). Uiteraard is er een lift aanwezig, een eigen berging en volop parkeergelegenheid in de directe omgeving.

Het kleinschalige appartementencomplex ligt op een goede locatie: midden in het centrum van Beilen. Supermarkten, winkels, horeca, apotheek en sportvoorzieningen zijn allemaal op loopafstand.
Voor wie graag de natuur in gaat, zijn het Dwingelerveld, Terhorsterzand en andere Drentse natuurlijkgebieden vlakbij. Beilen heeft daarnaast een eigen NS-station, en via de A28 zijn Assen, Zwolle en Groningen snel bereikbaar.

* Prijzen inclusief sanitair;
* Genoemde prijzen zijn vrij op naam.

  • 92-100 m2
  • 225-270 m3

Kenmerken Brinkstraat - 6 appartementen

Overdracht

Prijs€ 399.000,- t/m € 425.000,-
StatusBeschikbaar

Oppervlaktes en inhoud

Inhoud225-270 m3
Woonoppervlakte92-100 m2

Overig

Geen eigenschappen

Bouwtypes Brinkstraat - 6 appartementen

2 vrij van 2

Type E-F

€ 415.000,-

  • 92-96 m2 Woon opp.
  • 220-230 m3 Inhoud
2 vrij van 2

Type C-D

€ 425.000,-

  • 100 m2 Woon opp.
  • 270 m3 Inhoud
2 vrij van 2

Type A-B

€ 399.000,-

  • 100 m2 Woon opp.
  • 270 m3 Inhoud

Maandlasten Brinkstraat - 6 appartementen

Ligging project 'Brinkstraat - 6 appartementen'

Voorzieningen

Centraal gelegen informatie over de buurt

Aantal inwoners

In de gemeente

33.399

Leeftijd

in percentages van totaal

Huishoudsamenstelling

in percentages van totaal

33%

20% NL

34%

20% NL

33%

20% NL