€ 539.000,- k.k.
Goed onderhouden energiezuinige stadsvilla met dakterras, garage en zonnige tuin in het centrum van Beilen!
Op zoek naar een ruime, moderne woning in een rustige, kindvriendelijke buurt? Deze stadsvilla biedt het allemaal: een royaal woonoppervlakte van 161 m², een dakterras van 20 m², aangebouwde stenen garage en een prachtig onderhouden tuin op het westen. Dankzij de 7 zonnepanelen en het energielabel A is dit huis bovendien toekomstbestendig en energiezuinig.
Kenmerken woning
– Bouwjaar: 2010
– Woonoppervlakte: 161 m²
– Kavelgrootte: 354 m²
– Energielabel A
– 7 zonnepanelen
– Vloerverwarming op de begane grond
Indeling
Begane grond
Via de hal/entree bereik je de moderne L-vormige woonkamer, via de openslaande deuren of de bijkeuken kom je uit in de prachtige tuin. De stijlvolle keuken met schiereiland is van alle gemakken voorzien, inclusief hoogwaardige inbouwapparatuur van A-merken. In de bijkeuken vind je handige aansluitingen voor de onder andere een wasmachine. De begane grond is voorzien van vloerverwarming.
Eerste verdieping
Op de eerste verdieping bevinden zich drie ruime slaapkamers, allen keurig afgewerkt. De moderne badkamer is voorzien van een inloopdouche, een tweede toilet en een wastafelmeubel.
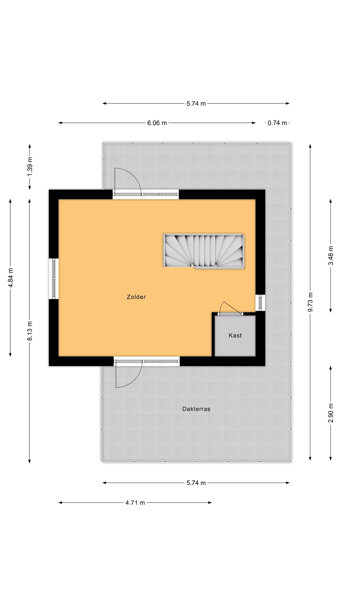
Tweede verdieping
De tweede verdieping biedt volop mogelijkheden! Deze multifunctionele ruimte is naar wens in te richten als extra slaapkamer, kantoorruimte of hobbykamer. Bovendien is er direct toegang tot het riante dakterras van circa 20 m², waar je in alle rust kunt genieten van de zon en het uitzicht.
Bergzolder
Vanuit de tweede verdieping kun je, door middel van een ladder, de ruime bergzolder betreden. De bergzolder is 25 m².
Buitenruimte
De woning beschikt over een fraai aangelegde tuin op het westen en een vrijstaande houten overkapping, ideaal voor lange zomerse avonden. De aangebouwde stenen garage met oprit biedt volop opslagruimte en de mogelijkheid om te parkeren op eigen terrein.
Uitstekende locatie in Beilen
Gelegen op loopafstand van het gezellige centrum van Beilen, waar je een bakker, supermarkt en diverse winkels binnen handbereik hebt. Voor de sportliefhebbers zijn er volop sportverenigingen en -faciliteiten in de directe omgeving. Ook voor gezinnen met kinderen is deze locatie ideaal: zowel een middelbare school als meerdere basisscholen liggen op korte afstand.
Reis je met het openbaar vervoer? Het NS-station is slechts 5 minuten lopen, ideaal voor woon-werkverkeer. Ook uitvalswegen richting Assen, Groningen en Zwolle zijn gemakkelijk te bereiken.
Kortom
Deze instapklare stadsvilla combineert luxe, comfort en duurzaamheid met een gunstige ligging en alle voorzieningen op steenworp afstand. Een ideale woning voor wie op zoek is naar ruimte, privacy en modern wooncomfort.
- 161 m2
- 354 m2
- 4
Kenmerken Bruggemaet 1
Overdracht
| Vraagprijs | € 539.000,- k.k. |
|---|---|
| Aanvaarding | In overleg |
Oppervlaktes en inhoud
| Perceel oppervlakte | 354 m2 |
|---|---|
| Woonoppervlakte | 161 m2 |
| Inhoud | 669 m3 |
Bouw
| Soort | Eengezinswoning |
|---|---|
| Bouwvorm | Bestaande bouw |
| Bouwjaar | 2010 |
| Dak type | Schilddak |
| Isolatievormen | Dakisolatie, Muurisolatie, Vloerisolatie, Dubbelglas, Volledig geïsoleerd, HR glas |
| Energielabel | A |
Indeling
| Aantal verdiepingen | 4 |
|---|---|
| Aantal kamers | 5 |
| Aantal slaapkamers | 4 |
| Aantal badkamers | 1 |
Maandlasten
Ligging Bruggemaet 1
Voorzieningen
Centraal gelegen informatie over de buurt
Aantal inwoners
In de gemeente
33.399
Leeftijd
in percentages van totaal
Huishoudsamenstelling
in percentages van totaal
33%
20% NL
34%
20% NL
33%
20% NL