€ 399.000,- k.k.
Op zoek naar een woning met een royaal perceel, op loopafstand van het centrum en onderhoudsvriendelijk? Kom kijken aan de Torenlaan 10!
Deze twee-onder-een-kapwoning biedt volop ruimte en een praktische indeling. De verzorgde tuin is een fijne plek om te ontspannen. Binnen vind je een ruime woonkeuken en drie slaapkamers, ideaal voor een gezin of voor wie extra ruimte zoekt.
Kenmerken
– Woonoppervlakte: 130 m²
– Perceeloppervlakte: 530 m²
– 3 slaapkamers en een royale zolderberging
– Fraai aangelegde tuin met beschutte ligging
Indeling
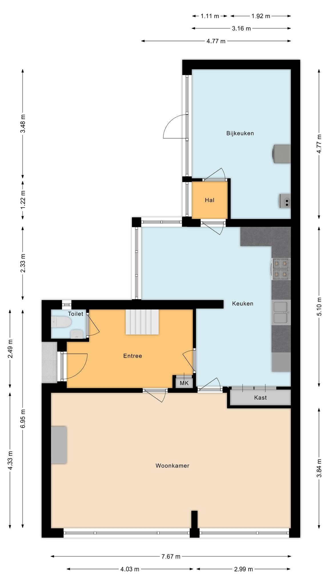
Begane grond
Op de begane grond kom je binnen in de hal met toegang tot het toilet, de lichte woonkamer met sfeervolle open haard en de woonkeuken. De keuken is voorzien van voldoende opbergruimte en kijkt uit op de fraai aangelegde achtertuin. Daarnaast is er een inpandige berging aanwezig, ideaal voor extra opslagruimte.
Eerste verdieping
Op de eerste verdieping bevinden zich drie slaapkamers en een badkamer met ligbad, douche en een tweede toilet. Middels een vlizotrap bereik je de tweede verdieping, waar zich een handige zolderberging bevindt.
Tuin
De fraai aangelegde achtertuin biedt een heerlijke plek om te ontspannen. Hier kun je genieten van de zon, terwijl de kinderen spelen of je samen met vrienden geniet van een gezellige barbecue. De tuin is onderhoudsarm aangelegd en biedt veel privacy.
Extra’s
– Voorzien van HR++ beglazing
– Deels kunststof kozijnen
– Inpandige berging en ruime zolderberging
– Inpandig balkon
Omgeving en voorzieningen
Deze woning is gelegen op loopafstand van het centrum. Alle voorzieningen die je nodig hebt, zoals supermarkten, winkels en sportfaciliteiten, zijn binnen handbereik. Voor gezinnen is dit een uitstekende plek om te wonen. Op nog geen 300 meter lopen vind je de dichtstbijzijnde basisschool en op 2 minuten fietsen de middelbare school. Het NS-station bevindt zich op steenworp afstand van deze woonwijk en de dichtstbijzijnde bushalte bevindt zich aan de overkant van de straat!
Beilen heeft een ruim aanbod aan sportactiviteiten, van tennis en voetbal tot sportscholen. Daarnaast ligt het Nationaal Park Dwingelderveld om de hoek, perfect voor de natuurliefhebber die graag wandelt of fietst door het prachtige Drentse landschap. Daarnaast is de A28 gemakkelijk te bereiken en ligt het NS-station op steenworp afstand, met directe verbindingen naar steden als Assen, Groningen en Zwolle.
Wonen aan de rand van het centrum van Beilen? Plan dan direct jouw bezichtiging in!
- 130 m2
- 530 m2
- 4
Kenmerken Torenlaan 10
Overdracht
| Vraagprijs | € 399.000,- k.k. |
|---|---|
| Aanvaarding | In overleg |
Oppervlaktes en inhoud
| Perceel oppervlakte | 530 m2 |
|---|---|
| Woonoppervlakte | 130 m2 |
| Inhoud | 529 m3 |
Bouw
| Soort | Eengezinswoning |
|---|---|
| Bouwvorm | Bestaande bouw |
| Bouwjaar | 1961 |
| Dak type | Zadeldak |
| Isolatievormen | Muurisolatie, Dubbelglas, HR glas |
| Energielabel | F |
Indeling
| Aantal verdiepingen | 3 |
|---|---|
| Aantal kamers | 5 |
| Aantal slaapkamers | 4 |
| Aantal badkamers | 1 |
Maandlasten
Ligging Torenlaan 10
Voorzieningen
Centraal gelegen informatie over de buurt
Aantal inwoners
In de gemeente
33.399
Leeftijd
in percentages van totaal
Huishoudsamenstelling
in percentages van totaal
33%
20% NL
34%
20% NL
33%
20% NL