€ 435.000,- k.k.
Welkom bij deze prachtige woonboerderij. Gelegen te midden van een prachtig landschap met vrij uitzicht over de omringende landerijen. De geschiedenis van deze woning, die teruggaat naar 1890, maakt deze woning uniek. Hier vind je niet alleen een warme sfeer, maar ook een scala aan mogelijkheden.
Kenmerken
• Energielabel C
• Perceelgrootte: 1.870 m²
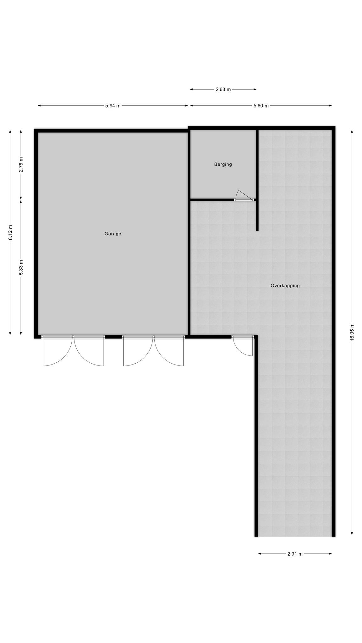
• Vrijstaande houten garage voor twee auto’s (ca. 48m²)
• 24 zonnepanelen
• Houthok
• Nabij gelegen fiets-, wandel- en natuurgebieden
• Laadpaal aansluiting (krachtstroom aanwezig)
Indeling
Je komt binnen in de hal/entree, omringd door een praktische bijkeuken en berging. De tussenhal biedt toegang tot een garderobe, badkamer en separaat toilet en twee comfortabele slaapkamers. De woonboerderij beschikt over een royale woonkeuken, woonkamer en extra berging. Via de trap bereik je de eerste verdieping met een overloop voorzien van vaste kasten en nog twee slaapkamers.
Het achterhuis is voorzien van een woonkamer (mancave), een badkamer voorzien van toilet en urinoir, een slaapkamer (ook te gebruiken als werkkamer), eetkamer (ook te gebruiken als vergaderruimte) en een extra berging. De trap naar de eerste verdieping opent de mogelijkheid voor de realisatie van extra slaapkamers, volledig naar uw wens.
Informatie
Geniet van ontspannen momenten met familie en vrienden onder de ruime overkapping aan de achterzijde van de woning.
De veelzijdigheid van deze woning maakt het geschikt voor diverse doeleinden, zoals een B&B, dubbele bewoning of de mogelijkheid tot werken aan huis.
Deze woonboerderij is gelegen nabij Gieterveen, met diverse voorzieningen zoals een basisschool, diverse sportfaciliteiten en een multifunctioneel centrum binnen handbereik. De nabijheid van de N33 (Assen-Veendam) zorgt voor uitstekende bereikbaarheid.
Mis deze unieke kans niet om te genieten van het comfort en de charme van deze prachtige woonboerderij. Neem vandaag nog contact met ons op voor een bezichtiging en laat je verrassen door de mogelijkheden die deze woning te bieden heeft.
- 241 m2
- 1.870 m2
- 4
Kenmerken Tjassenswijk 1
Overdracht
| Vraagprijs | € 435.000,- k.k. |
|---|---|
| Aanvaarding | In overleg |
Oppervlaktes en inhoud
| Perceel oppervlakte | 1.870 m2 |
|---|---|
| Woonoppervlakte | 241 m2 |
| Inhoud | 1.311 m3 |
Bouw
| Soort | Eengezinswoning |
|---|---|
| Bouwvorm | Bestaande bouw |
| Bouwjaar | 1890 |
| Dak type | Zadeldak |
| Isolatievormen | Dakisolatie, Muurisolatie, Gedeeltelijk dubbelglas |
| Energielabel | C |
Indeling
| Aantal verdiepingen | 2 |
|---|---|
| Aantal kamers | 9 |
| Aantal slaapkamers | 4 |
| Aantal badkamers | 1 |
Maandlasten
Ligging Tjassenswijk 1
Voorzieningen
Centraal gelegen informatie over de buurt
Aantal inwoners
In de gemeente
25.286