Ga naar inhoud

Te koop: woonhuis Moraineweg 12 9417 TB Spier

Beschikbaar

Bezichtiging plannen

€ 795.000,- k.k.

Vrijstaande woonboerderij op royale kavel met schuur en schitterende ligging aan de bosrand.

Aan de rand van het Drentse dorp Spier, op een perceel van maar liefst 3.020 m², staat deze karaktervolle vrijstaande woonboerderij (bouwjaar 1870, gerenoveerd in 2016). De woning is uitstekend onderhouden en biedt volop ruimte, zowel binnen als buiten. Met een vrijstaande stenen schuur van 248 m², het prachtige vrije uitzicht en de ligging direct aan de bosrand, is dit een unieke plek waar landelijk wonen en hedendaags comfort samenkomen.

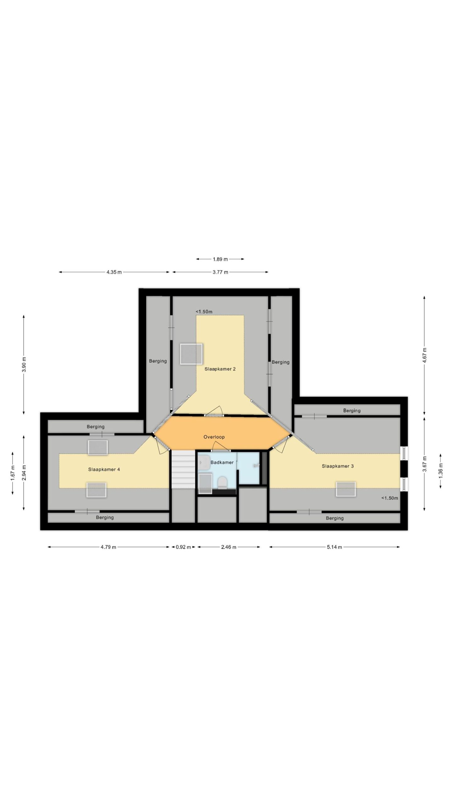
Indeling van de woning
Begane grond:
Via de entree met toilet komt u binnen in de royale woonboerderij. De sfeervolle woonkamer is voorzien van ensuite deuren en een houtkachel. Grenzend hieraan ligt de lichte eetkamer, die direct aansluit op de moderne woonkeuken met schiereiland en inbouwapparatuur – een ideale plek voor gezellig samenzijn en uitgebreid koken. Verder vindt u op de begane grond een praktische bijkeuken, een werk-/kantoorruimte en een comfortabele slaapkamer met aangrenzende badkamer voorzien van douche, toilet en wastafel. Hiermee is gelijkvloers wonen uitstekend mogelijk.

Verdieping:
De overloop geeft toegang tot drie ruime slaapkamers, allemaal met een prettige lichtinval. De tweede badkamer is compleet ingericht met douche, wastafel en toilet. Een ideale verdieping voor gezinsleden of gasten.

Bijgebouwen
Op het erf bevindt zich een royale vrijstaande stenen schuur (248 m²) met elektra, wateraansluiting en een vliering. Deze multifunctionele ruimte is geschikt voor uiteenlopende doeleinden, zoals hobby’s, opslag of werk aan huis.

Kenmerken:
– Woonoppervlakte: ca. 150 m²;
– Perceeloppervlakte: 3.020 m²;
– Voorzien van 27 zonnepanelen;
– Verwarming middels warmtepomp en boiler;
– Airconditioning (2x) aanwezig;
– Energielabel C;
– Dakbedekking: riet en pannen.

De tuin is rondom de woning gesitueerd en ligt op het zuidoosten. Hier kunt u de hele dag genieten van rust, natuur en een prachtig uitzicht over de omliggende landerijen.

Wonen in Spier
Spier is een sfeervol Drents brinkdorp met een landelijke ligging. Het dorp ligt tegen het Nationaal Park Dwingelderveld, één van de mooiste en grootste natuurgebieden van Nederland, waar u eindeloos kunt wandelen en fietsen. Ondanks de rustige ligging zijn voorzieningen goed bereikbaar: binnen enkele minuten bereikt u Beilen en Hoogeveen met uitgebreide winkel-, school- en sportvoorzieningen. Ook de uitvalswegen (A28) liggen nabij, waardoor Assen en Zwolle uitstekend bereikbaar zijn.

Kortom: Moraineweg 12 te Spier biedt u het beste van twee werelden: wonen in alle rust, omgeven door natuur, maar toch met het comfort en de voorzieningen van nu.

Voor meer informatie of het plannen van een bezichtiging kunt u contact opnemen met: Hup en Fidom Garantiemakelaars Beilen

  • 150 m2
  • 3.020 m2
  • 4

Kenmerken Moraineweg 12

Overdracht

Vraagprijs€ 795.000,- k.k.
AanvaardingIn overleg

Oppervlaktes en inhoud

Perceel oppervlakte3.020 m2
Woonoppervlakte150 m2
Inhoud564 m3

Bouw

SoortWoonboerderij
BouwvormBestaande bouw
Bouwjaar1870
Dak typeZadeldak
IsolatievormenDakisolatie, Muurisolatie, Vloerisolatie
EnergielabelC

Indeling

Aantal verdiepingen2
Aantal kamers5
Aantal slaapkamers4
Aantal badkamers2

Maandlasten

Ligging Moraineweg 12

Voorzieningen

Centraal gelegen informatie over de buurt

Aantal inwoners

In de gemeente

33.399

Vergelijkbaar woningaanbod